Individuelle Badplanung für ein Gäste-WC
Individuelle Badplanung für ein Gäste-WC
3D Badplanung für ein Gäste-WC
Verfügbarkeit für Abholungen konnte nicht geladen werden
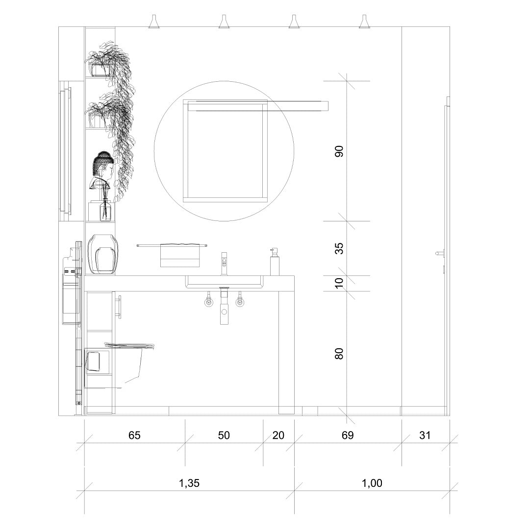
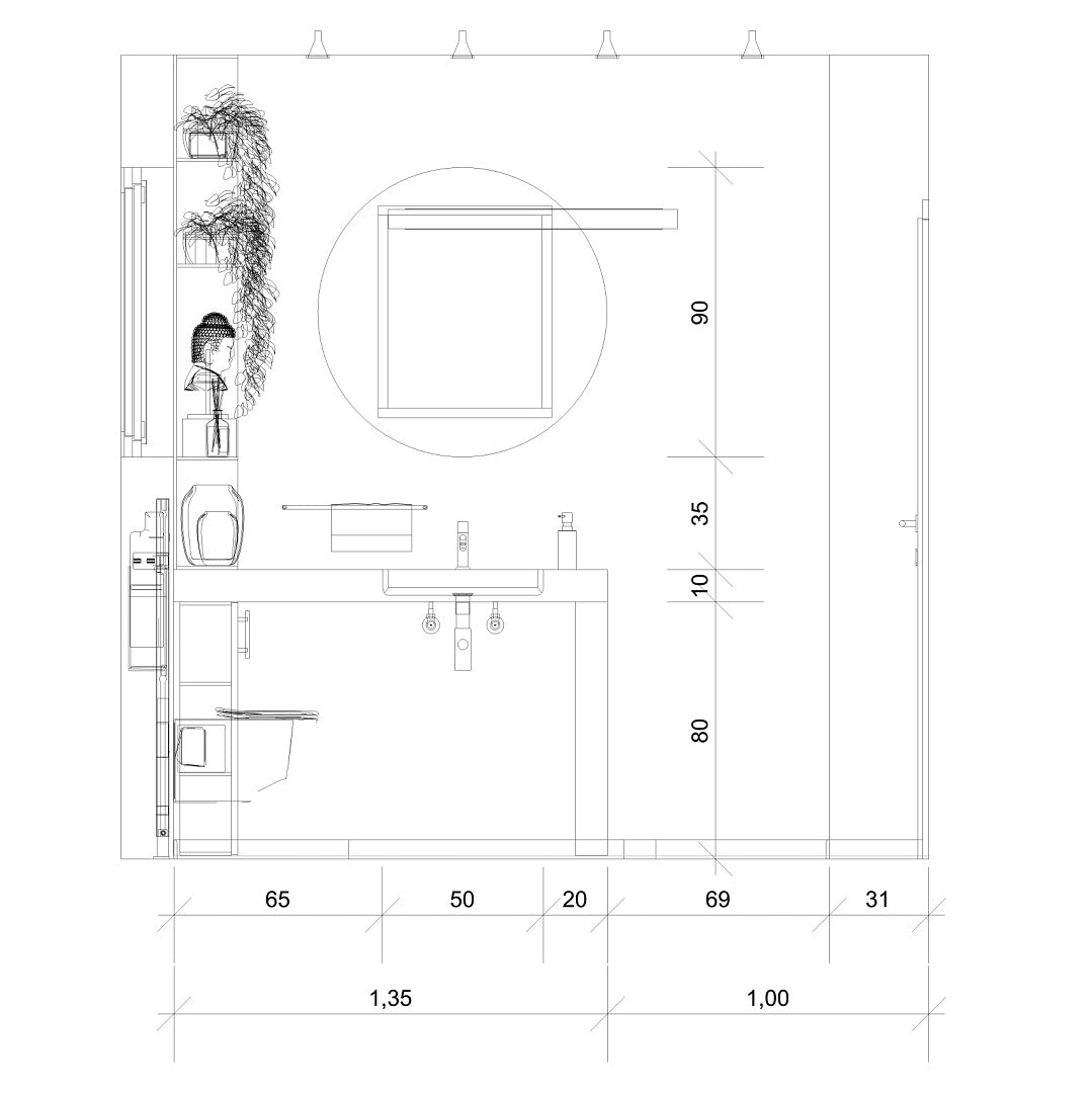
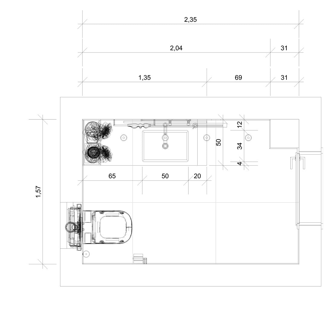
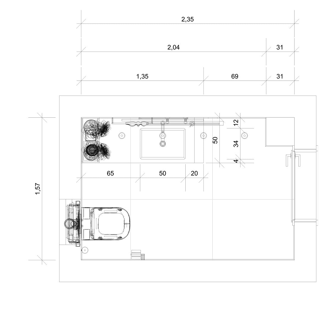
Genaue Planung mit Grundrissen
Bedarfsanalyse, Objektberatung und zeichnerische Darstellung des Entwurfes in Form einer Grundrissplanung sowie perspektivischen Darstellungen.
Unser Angebot umfasst:
- 1 Grundrissaufbau
- 1-2 räumliche Einteilungsvorschläge
- 2 Visualisierungen

Planung von Innenarchitekten
Ein schönes Badezimmer braucht eine gute Planung. Wir entwickeln für dich ein individuelles, überzeugendes Raumkonzept und setzen deine Wünsche mit einer 3D-Planung zielgerichtet um.
Ein Gäste WC mit Wow-Effekt.
-
Individuelle Gestaltung und vielfältige Anpassungsmöglichkeiten: Wir planen gemeinsam mit dir das perfekte Badezimmer für dein Zuhause!
-
Als Innenarchitekten und Fachplaner mit langjähriger Erfahrung im Bau von hochwertigen Bädern haben wir uns im Laufe unserer Firmengeschichte auf die individuelle Badplanung von Traumbädern spezialisiert.
-
Neben der Planung stehen wir dir mit unserem Wissen und unserer Erfahrung auch bei der zielgerichteten Umsetzung deiner Vorstellung zur Seite.
Kundenbewertungen
-
Marcel W
Wir haben drei Bäder in unserem neuen Haus mit der Firma Fröhlich umgesetzt und das Ergebnis überzeugt durchweg!
Die Auswahl ist sehr exklusiv und hebt sich von allen anderen Anbietern in weitem Umkreis spürbar ab. Eine absolute Empfehlung an jeden mit gehobenem Geschmack! -
Harald M.
Nur sehr gute Erfahrungen gemacht. Drei Bäder mit der Firma Fröhlich neu gestaltet. TOP !! Von der Planung und Ausführung. Wer einen guten und zuverlässigen, sowie kreativen Badgestalter sucht und Wert auf handwerkliche Qualität legt, ist hier bestens aufgehoben.
-
Anna B.
Wir haben uns zwei Bäder und eine Gästetoilette für einen neu renovierten Altbau entwerfen lassen. Echter Wahnsinn, was da aus einem Bad gemacht wird! Hier bekommt man kein 0815 Bad von der Stange, sondern etwas mit dem man sich und sein Haus von der Masse deutlich abhebt.
Beratung vor Ort oder online
Betrachte die Badezimmerplanung mit einer VR-Brille bequem von zu Hause aus
Kontakt
Professionelle Badplanung
Unsere Visualisierungen sind unabhängig von einer Umsetzung des Bauvorhabens. Sie verstehen sich als unverbindlicher Gestaltungsvorschlag und dienen als Grundlage zur Gestaltung Ihres Badezimmers. Vermaßte Ausführungspläne sind nicht Bestandteile dieses Angebots, solltest du diese benötigen, werden diese nach Beauftragung erstellt.